Anfang << >> Ende Präsentation Thumbs Bild  23/108
2013-06-01_ansicht_nord.jpg

01.06.2013
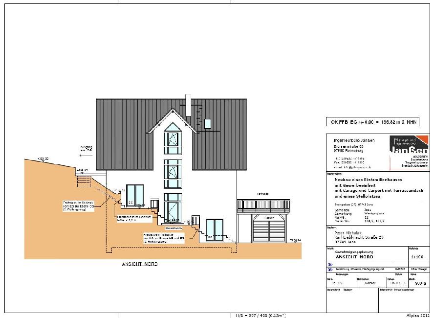
Die Genehmigungsplanung ist abgeschlossen, Ansicht Nord.