Anfang << >> Ende Präsentation Thumbs Bild  26/108
2013-06-01_ansicht_west.jpg

01.06.2013
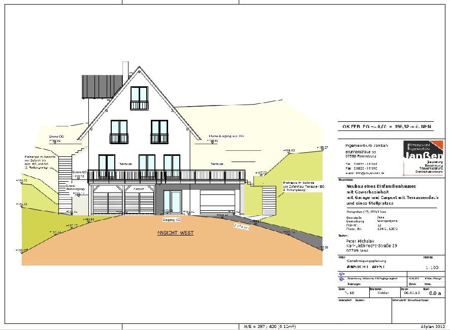
Ansicht West.