Anfang << >> Ende Präsentation Thumbs Bild  27/108
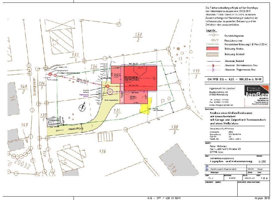
2013-06-01_lageplan.jpg

01.06.2013
Lageplan.