Anfang << >> Ende Präsentation Thumbs Bild  62/108
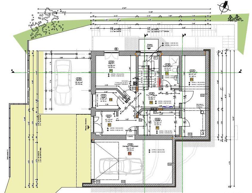
2014-03-01_grundriss1_keller.jpg

01.03.2014
Die Ausführungsplanung ist beendet. Grundriss Kellergeschoss.